Ricerca rapida
Codice
Tipologia
Categoria
Città
Zona
Descrizione
Prezzo (da - a)
-
Mq (da - a)
-
Ordine
Cerca
Scheda Immobile

BALDUINA - SUPERATTICO

Codice A000806
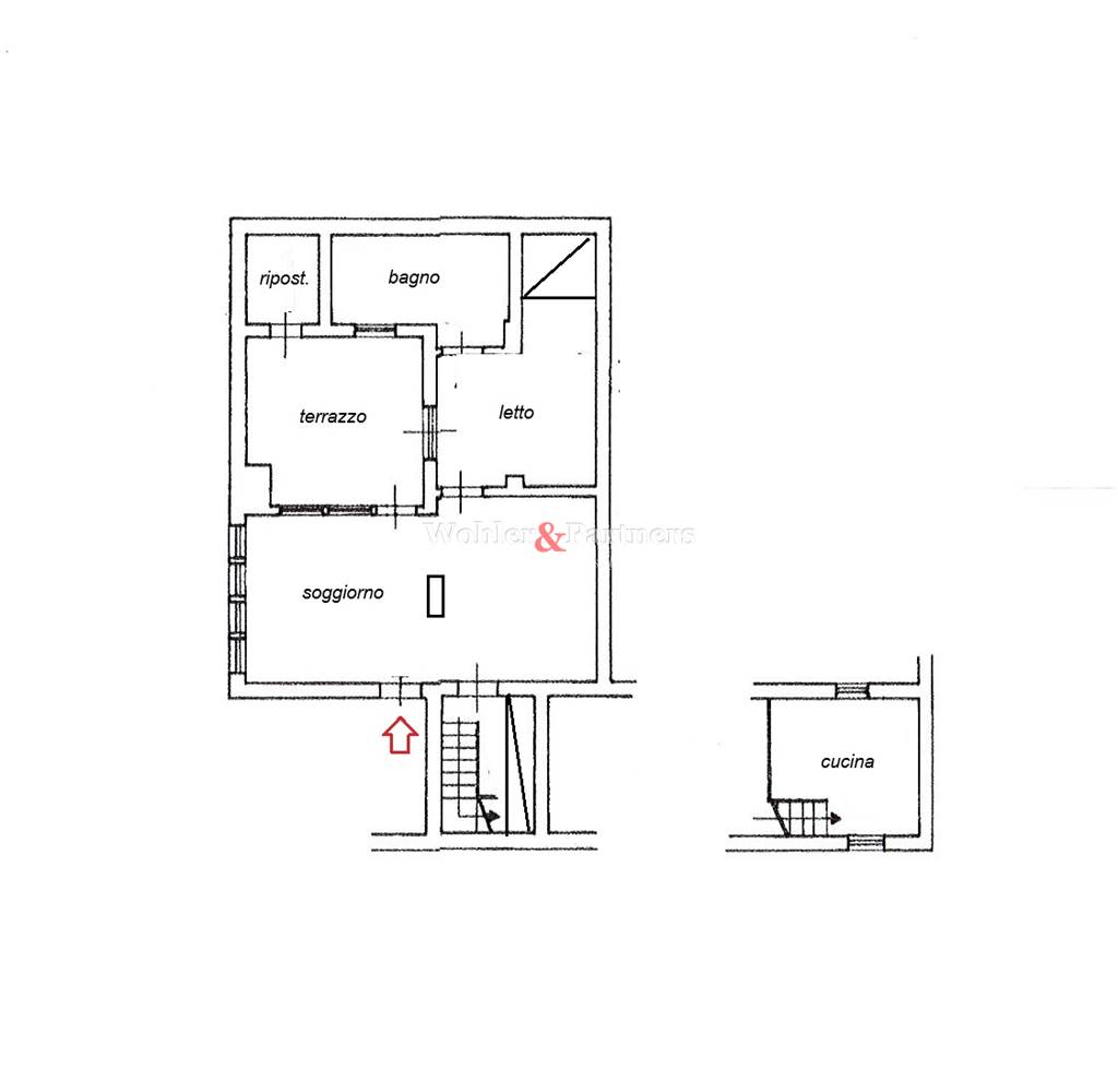
Via T. Macrobio - delizioso superattico completamente ristrutturato nuovo mai abitato (consegna 1° febbraio 2026) luminoso panoramico di circa mq.60 su 2 livelli :
Sotto : soggiorno con pavimenti in mattoncini antichi - terrazzo a livello di circa mq.12 - camera da letto e bagno con doccia
Sopra : cucina nuova semi-abitabile completamente arredata ed accessoriata
ACCEESSORI : porta blindata - infissi nuovi - aria condizionata - 2 armadi e cucina arredata -
Completa la proprietà un posto auto/moto coperto a riempimento
CONTRATTO CEDOLARE SECCA 4 + 4
================================
REFERENZIATI BUSTA PAGA/UNICO
==============================
FIDEJUSSIONE BANCARIA IMPORTO 4 MENSILITA'
=========================================
*Le presenti informazioni e planimetrie sono meramente indicative e non costituiscono elementi contrattuali.*
Prezzo
1.350,00 EUR
Spese condominiali
1.200,00 EUR
Mq
60
Classe
G
Locali
2
Camere
1
Bagni
1
Posti auto
1
Stato Immobile
Nuovo
Grado
Signorile
Panorama
Vista Aperta
Orientamento
Sud Est
Lati Liberi
2
Arredi
Solo Cucina
Tipo Cucina
Semi Abitabile
Riscaldamento
Centralizzato
Tipo Impianto
Radiatori
Fonte Energetica
GPL
Acqua Calda
Autonoma
Raffrescamento
Split
Infissi
Alluminio Doppio Vetro
Serramenti
Nuovo
Pavim. Giorno
Cotto
Pavim. Notte
Cotto
Pavim. Cucina
Ceramica
Pavim. Bagno
Ceramica
Cauzione
Due Mesi
Canoni Anticipati
Un Mese
Tipo Contratto
4+4 Anni
Accessori
Aria Condizionata, Armadio a muro, Ascensore, Doppi Vetri, Impianto Satellitare, Porta Blindata, Ripostiglio
Richiedi informazioni
Compila questo modulo per inviarci una mail
di richiesta informazioni per questo immobile
Riferimento Immobile
Nominativo
Telefono
Email
Testo richiesta
Autorizzo il trattamento dei miei dati personali in base Regolamento UE n. 679/2016 - Privacy Policy
Tutti i campi sono obbligatori
Invia
Cookie preference