Ricerca rapida
Codice
Tipologia
Categoria
Città
Zona
Descrizione
Prezzo (da - a)
-
Mq (da - a)
-
Ordine
Cerca
Scheda Immobile

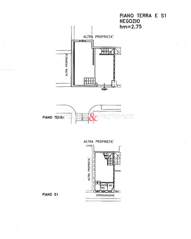
NEGOZIO - FARNESINA

Codice V001576
ottima posizione nella parte più commerciale di Via della Farnesina adiacente ad altri negozi vendiamo le mura di un negozio (C/1) di circa mq.85 con 2 ambienti e una vetrina fronte strada - antibagno + bagno.
===========================================
Possibilità di subentro leasing
=======================
Le presenti informazioni non costituiscono elemento contrattuale né presupposto contrattuale*
Prezzo
278.000,00 EUR
Mq
85
Classe
G
Locali
2
Bagni
1
Stato Immobile
Buono
Riscaldamento
Autonomo
Tipo Riscaldam.
Pompa di Calore
Raffrescamento
Split
Accessori
Aria Condizionata
Richiedi informazioni
Compila questo modulo per inviarci una mail
di richiesta informazioni per questo immobile
Riferimento Immobile
Nominativo
Telefono
Email
Testo richiesta
Autorizzo il trattamento dei miei dati personali in base Regolamento UE n. 679/2016 - Privacy Policy
Tutti i campi sono obbligatori
Invia
MAPPA
Via della Farnesina 235, Roma (RM)
Cookie preference