Быстрый поиск
код
тип
категория
город
область
описание
цена (от - до)
-
кв.м. (от - до)
-
сортировка
Поиск
Анкета собственности

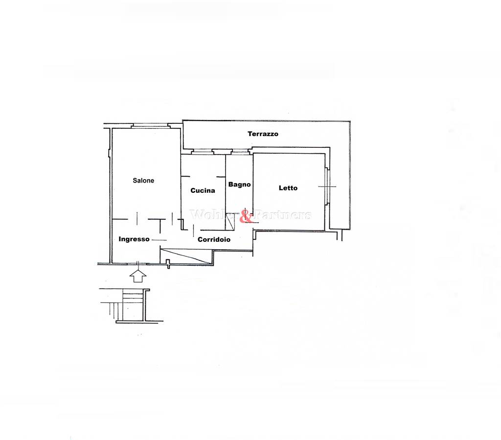
Roma (Cassia/ Tomba di Nerone/ Giustiniana/ Olgiata) - квартира

код V001584
цена
325 000,00 EUR
кондо сборов
960,00 EUR
кв.м.
110
Класс энергопотребления
G
номеров
4,5
Ванные комнаты
1
Состояние недвижимости
Хорошее
Уровень недвижимости
Элегантный
Панорама
Вид на горы
Этаж
Четвёртый этаж
Расположение
Юго западное
Свободные стороны
2
Обстановка
Не мебелированая
Тип гостинной
салон
Тип кухни
Отдельная
Отопление
Центральное
Тип отопления
Caldaia
Tipo Impianto
Радиаторы
Fonte Energetica
метан
Горячая вода
Круглогодичный электрический бойлер
Наличники
Алюминий Двойное остекление
Двери
В среднем состоянии
пол кухни
Керамика
Ванная комната Этаж
Керамика
Подвал - чердак
Погреб
аксессуары
Буфет, Лифт, Двойные стеклопакеты, Бронированая дверь
Запрос информации
Заполните эту форму, чтобы отправить нам по электронной почте запрос
для этого свойства
Riferimento Immobile
Nominativo
Telefono
Email
Testo richiesta
Я разрешаю обработку персональных данных, содержащихся в моей биографии на основе искусства. 13 D. Указом 196/2003 - Политика конфиденциальности
Все поля обязательны для заполнения
послать
КАРТА
Largo San Godenzo 3, Roma (RM)
Cookie preference